Bergmolen 18

Bergmolen 18

MAASSLUIS

vraagprijs

verkocht

Ook uw woning of bedrijfspand succesvol verkopen? Neem dan contactmet ons op

Gratis waardebepaling

Omschrijving

Instapklare, stijlvol gemoderniseerde 5-kamer gezinswoning met uitbouw, luxe keuken en zonnige tuin in de geliefde Molenwijk van Maassluis

In de populaire en kindvriendelijke Molenwijk van Maassluis staat deze uitstekend onderhouden en direct instapklare 5-kamer eengezinswoning. De woning is tussen eind 2021 en 2024 grondig en smaakvol gemoderniseerd. Zo zijn in 2021 de keuken, badkamer, toiletten en vloer vernieuwd, is in 2023 een royale uitbouw van 2,5 meter met dubbele schuifpui geplaatst en is in 2024 de complete achtertuin opnieuw aangelegd.

Dankzij de praktische indeling, royale leefruimtes en hoogwaardige afwerking is dit een ideale woning voor gezinnen die op zoek zijn naar ruimte, comfort en sfeer. De woning beschikt over vier slaapkamers, een luxe keuken, moderne sanitaire voorzieningen, een stijlvolle visgraatvloer en een diepe, zonnige tuin op het zuiden met achterom.

Begane grond
Je komt de woning binnen via de hal met meterkast en een modern toilet met fonteintje. De ruime en lichte woonkamer is afgewerkt met een fraaie licht eiken PVC-visgraatvloer en beschikt over een trapkast en een ingebouwde apothekerskast voor extra bergruimte.

Via karakteristieke kamer-en-suite schuifdeuren met glas-in-lood betreed je de in 2023 aangebouwde tuinkamer. Deze sfeervolle uitbreiding is voorzien van een dubbele schuifpui die toegang biedt tot de zonnige achtertuin en een naadloze overgang creëert tussen binnen en buiten.

Aan de voorzijde van de woning bevindt zich de moderne halfopen keuken, eind 2021 volledig vernieuwd en ingericht in een efficiënte U-opstelling. De keuken is uitgerust met hoogwaardige inbouwapparatuur, waaronder een 5-pits Atag gaskookplaat, combimagnetron, separate oven, koel-vriescombinatie, vaatwasser, afzuigkap en een luxe Celsius kokendwaterkraan. De keuken biedt volop werk- en kastruimte en vormt het functionele hart van de woning.

Eerste verdieping
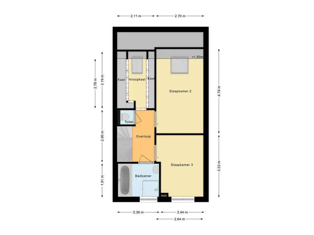
Op de eerste verdieping bevinden zich drie slaapkamers, waarvan één momenteel is ingericht als luxe walk-in closet. De master bedroom aan de achterzijde is voorzien van een Velux dakraam en een nette laminaatvloer. De derde slaapkamer, aan de voorzijde, is geschikt als slaap-, werk- of kinderkamer.

De badkamer is modern uitgevoerd en beschikt over een ruime inloopdouche, ligbad, wastafelmeubel en een designradiator. Tevens is op de overloop eveneens een modern, apart toilet te vinden.

Tweede verdieping
Op de tweede verdieping bevindt zich een ruime overloop met Velux dakraam, aansluitingen voor wasmachine en droger, een praktische gootsteen en de opstelling van de CV-combiketel (Nefit CW5, 2016). De vierde slaapkamer is royaal van formaat, voorzien van een Velux dakraam en beschikt over veel bergruimte achter de knieschotten. Via de overloop is met een vlizotrap de kruipvliering bereikbaar, die zich uitstrekt over de volledige breedte van de woning.

Tuin
De zonnige achtertuin is in 2024 volledig opnieuw aangelegd. Dankzij de zuidelijke ligging geniet je hier de hele dag van zon. De tuin is bereikbaar via een achterom en vormt, samen met de openslaande schuifpui, een heerlijke verlenging van de woonruimte. Perfect voor lange zomerdagen, kinderen die willen spelen of ontspannen borrelmomenten.

Bijzonderheden
- Bouwjaar: 1988
- Perceel: 132 m² eigen grond
- Woonoppervlakte: ca. 109 m²
- Energielabel: B
- Zonnige achtertuin op het zuiden met achterom (nieuw aangelegd in 2024)
- Uitbouw van 2,5 meter met kamer-en-suite deuren (2023)
- Nieuwe dubbele schuifpui geplaatst in 2023
- Keuken, badkamer, toiletten en vloer vernieuwd in 2021
- Buitenschilderwerk uitgevoerd in 2024
- Luxe walk-in closet
- Hoogwaardige keuken met kokendwaterkraan en A-merk apparatuur

Oplevering: in overleg - Verwacht september

In de koopovereenkomst wordt standaard een ouderdomsclausule opgenomen, omdat deze woning ouder is dan 20 jaar. Deze tekst is met zorg samengesteld. Voor de juistheid van de verstrekte informatie zijn wij in de regel in grote mate afhankelijk van derden. De vermelde informatie is van algemene aard en is niet meer dan een uitnodiging om in onderhandeling te treden. Aan de inhoud van deze informatie kunnen geen rechten worden ontleend.
Lees meer

Kenmerken

Overdracht

Status
verkocht
Aanvaarding
in overleg

Bouw

Soort woning
woonhuis
Soort woonhuis
eengezinswoning
Type woonhuis
tussenwoning
Aantal woonlagen
4
Bouwjaar
1988
Onderhoud binnen
uitstekend
Onderhoud buiten
goed_tot_uitstekend
Voorzieningen
mechanische ventilatie, tv kabel, schuifpui, dakraam, glasvezel kabel
Isolatie
dubbel glas, volledig geisoleerd, hr glas

Energie

Energielabel
B
Verwarming
cv ketel
Warm water
cv ketel
C.V.-ketel
gas gestookte combi-ketel uit 2016 van Nefit CW5, eigendom

Oppervlakten en inhoud

Woonoppervlakte
109 m²
Perceeloppervlakte
132 m²
Inhoud
388 m³
Bergruimte oppervlakte
4 m²

Indeling

Aantal kamers
5

Buitenruimte

Ligging
in woonwijk
Tuin
achtertuin met een oppervlakte van 41 m² en is gelegen op het zuiden

Garage / Schuur / Berging

Garage
geen garage
Parkeergelegenheid
openbaar parkeren
Schuur/berging
vrijstaand steen

Foto's

Locatie

Vraag een bezichtiging aan of neem contact met ons op