Prinsekade 20RD

Prinsekade 20RD

MAASSLUIS

vraagprijs

verkocht

Ook uw woning of bedrijfspand succesvol verkopen? Neem dan contactmet ons op

Gratis waardebepaling

Omschrijving

Stijlvol en compleet gerenoveerd 3-kamer bovenappartement – Instapklaar, energiezuinig en vol karakter!

Ben je op zoek naar een instapklare woning met charme én modern wooncomfort? Dan is dit sfeervolle bovenappartement aan de geliefde Prinsekade 20 RD in Maassluis precies wat je zoekt. Volledig gerenoveerd in 2024-2025, tot in de puntjes afgewerkt én voorzien van energielabel A. Hier hoef je écht niks meer aan te doen!

De locatie:
Je woont hier heerlijk rustig aan de historische Noordvliet, met winkels, horeca, openbaar vervoer en het oude centrum van Maassluis op loopafstand. Een fijne combinatie van karakter, comfort én gemak.

De indeling:
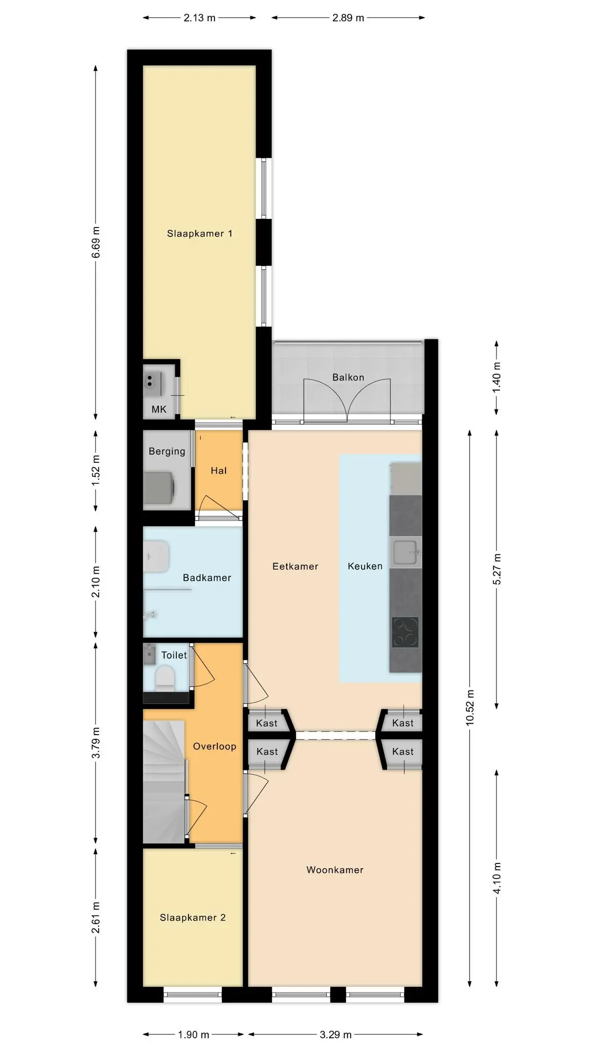
Via je eigen entree en trap bereik je dit ruime en lichte bovenappartement met een verrassend praktische indeling:
Woonkamer en eetkamer in kamer-en-suite, vaste kasten én prachtig glas-in-lood aan de achterzijde (geïsoleerd). De gehele woning is voorzien van een luxe PVC visgraatvloer en strakke afwerking in RAL9010.
De open keuken (2025) is een echte eyecatcher met veel bergruimte en volledig nieuwe, energiezuinige apparatuur: inductiekookplaat, combimagnetron, koelkast, vaatwasser en afzuigkap. Via de eetkamer stap je zo het gerenoveerde balkon op met dubbele deuren – hier kun je heerlijk buiten zitten.
Slaapkamer 1 aan de voorzijde is licht, met uitzicht op het water. Slaapkamer 2 is ruim, ligt aan de rustige achterzijde en is door het vele glas ook heerlijk licht. De nieuwe badkamer (2025) is luxe uitgevoerd met inloop regendouche, elektrische radiator, vloerverwarming, stijlvol tegelwerk en een luxe badmeubel. Daarnaast is er een apart toilet met fonteintje én een praktische berging met witgoedaansluiting.

Pluspunten op een rij:
- Volledig gerenoveerd in 2024-2025.
- Energielabel A.
- HR++ glas mét ventilatieroosters in de hele woning.
- Nieuwe waterleidingen, riolering en elektra.
- Nieuwe meterkast (2025).
- Nieuwe Intergas CV-ketel (2025) – eigendom.
- Nieuw ventilatiesysteem met energiezuinige en stille mechanische ventilatiebox (2025).
- Nieuwe radiatoren en volledige schilderafwerking.
- Volledige isolatie van vloer, muren en plafonds (dubbelgips).
- Spotjes met LED-verlichting in woonkamer, toilet en badkamer.
- Meerdere handige inbouwkasten.
- Afsluitbare buitenruimte van ca. 6 m² bereikbaar via de Rusthuisstraat – ideaal voor fietsen of extra opslag.
- Mogelijkheid tot het plaatsen van een berging in de tuin (toegang via achterom)
- Nieuwe VvE opgericht in mei 2025; bijdrage ca. € 82,50.

Oplevering: in overleg; kan snel.

Jouw nieuwe thuis?
Dit is jouw kans op een perfect afgewerkte, energiezuinige bovenwoning met karakter, comfort én een geweldige ligging. Je hoeft alleen nog maar je meubels neer te zetten!

Plan snel een bezichtiging en ervaar zelf de ruimte, sfeer en kwaliteit van deze unieke woning aan de Prinsekade.

In de koopovereenkomst zullen er 2 extra clausules worden opgenomen:
- De verkoper heeft de woning niet zelf bewoond clausule.
- Ouderdomsclausule.

"Huis kopen? Neem je eigen NVM-makelaar mee!".
Lees meer

Kenmerken

Overdracht

Status
verkocht
Aanvaarding
in overleg

VvE checklist

Inschrijving KVK
Ja
Jaarlijkse vergadering
Ja
Periodieke bijdrage
Ja (82,50 per maand)
Reservefonds aanwezig
Nee
Onderhoudsplan
Ja
Opstalverzekering
Ja

Bouw

Soort woning
appartement
Soort appartement
bovenwoning
Aantal woonlagen
1
Woonlaag
1
Bouwjaar
1913
Open portiek
nee
Onderhoud binnen
uitstekend
Onderhoud buiten
uitstekend
Isolatie
volledig geisoleerd, hr glas

Energie

Energielabel
A
Verwarming
cv ketel
Warm water
cv ketel
C.V.-ketel
gas gestookte combi-ketel uit 2025, eigendom

Oppervlakten en inhoud

Woonoppervlakte
72 m²
Buitenruimte oppervlakte
4 m²

Indeling

Aantal kamers
3

Buitenruimte

Ligging
aan water, in centrum, in woonwijk

Garage / Schuur / Berging

Garage
geen garage
Parkeergelegenheid
openbaar parkeren
Schuur/berging
vrijstaand hout

Foto's

Plattegronden

Locatie

Vraag een bezichtiging aan of neem contact met ons op