Rhijnvis Feithstraat 28

Rhijnvis Feithstraat 28

MAASSLUIS

vraagprijs

verkocht

Ook uw woning of bedrijfspand succesvol verkopen? Neem dan contactmet ons op

Gratis waardebepaling

Omschrijving

Instapklare, duurzame 5-kamer eindwoning met eigen parkeerplaats en zonnige tuin!

Op zoek naar een moderne, energiezuinige en instapklare woning? Deze ruime 5-kamer eindwoning biedt alles wat je zoekt: een lichte woonkamer met openslaande deuren, een luxueuze keuken met Siemens inbouwapparatuur, vier ruime slaapkamers, een eigen parkeerplaats en een zonnige tuin op het zuidwesten. De woning is volledig gasloos, voorzien van een warmtepomp, 12 zonnepanelen en HR+++ glas, en biedt optimaal wooncomfort met vloerverwarming én verkoeling op alle verdiepingen.

Gelegen in de kindvriendelijke wijk Sluispolder, woon je hier in een rustige omgeving met alle voorzieningen binnen handbereik. Op loop- en fietsafstand vind je winkels, scholen, sportfaciliteiten en openbaar vervoer. Het historische centrum van Maassluis, met gezellige terrassen, winkels en restaurants, ligt vlakbij. Dankzij de gunstige ligging nabij uitvalswegen en metrostation Maassluis Centrum ben je bovendien zo in Rotterdam of Den Haag.

Indeling

Begane grond
Bij binnenkomst tref je de hal met meterkast, modern toilet met fontein en trapopgang naar de eerste etage. De ruime woonkamer is heerlijk licht dankzij de grote raampartijen en openslaande deuren naar de tuin. De strak afgewerkte renovlies wanden en de lichte pvc-vloer met vloerverwarming zorgen voor een moderne en warme uitstraling.

De keuken in U-opstelling is een echte eyecatcher. De combinatie van een strak werkblad met gladde kasten en een apart vormgegeven houtlook kastenwand geeft een luxe uitstraling. De keuken is uitgerust met hoogwaardige Siemens inbouwapparatuur, waaronder een inductiekookplaat, recirculatiekap, vaatwasser, stoomoven en koel-/vriescombinatie.

Eerste verdieping
De trap, afgewerkt met licht eiken bekleding, leidt naar de eerste verdieping waar drie slaapkamers te vinden zijn. De master bedroom bevindt zich aan de achterzijde en biedt ruimte voor een groot bed en een kast. Daarnaast ligt hier een extra slaapkamer, perfect als kinderkamer of thuiskantoor. De derde slaapkamer bevindt zich aan de voorzijde. Alle kamers zijn voorzien van een lichte pvc-vloer met vloerverwarming.

De moderne badkamer is strak vormgegeven en beschikt over een inloopdouche, wastafelmeubel, handdoekenradiator, toilet en een raam voor natuurlijke ventilatie.

Tweede verdieping
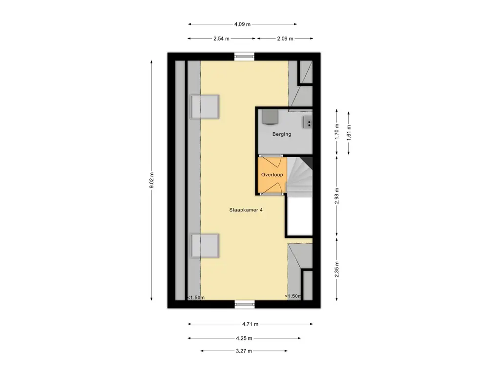
De ruime vierde slaapkamer op deze verdieping heeft een unieke hoogte door de dwarskap, wat zorgt voor extra licht en ruimte. Dankzij meerdere dakramen is dit een fijne en veelzijdige kamer, bijvoorbeeld als hobbyruimte, werkplek of extra slaapkamer.

Daarnaast vind je op de etage de technische ruimte, met aansluitingen voor de wasmachine en droger. Hier zijn ook de warmtepomp, warmte-terugwininstallatie, 200L boiler en de omvormer voor de zonnepanelen geplaatst.

Buitenruimte
De achtertuin op het zuidwesten biedt veel zon en is via de openslaande deuren in de woonkamer of de achterom bereikbaar. De tuin is keurig onderhouden en beschikt over een houten berging met elektra. Direct achter de tuin ligt de eigen parkeerplaats, waardoor je nooit hoeft te zoeken naar een plek.

Locatie
De woning ligt in de wijk Sluispolder, een rustige en kindvriendelijke buurt. Hier woon je op steenworp afstand van scholen, supermarkten en sportverenigingen. Ook het oude centrum van Maassluis is vlakbij, waar je kunt genieten van winkels, horecagelegenheden en culturele activiteiten.

Qua bereikbaarheid zit je hier uitstekend: metrostation Maassluis Centrum ligt op korte afstand, waarmee je binnen no-time in Rotterdam bent. Daarnaast ben je via de A20 snel in Den Haag of Rotterdam, terwijl je ook heerlijk kunt genieten van de natuur in recreatiegebied Midden-Delfland.

Bijzonderheden
- Woonoppervlak 127 m²
- Perceeloppervlakte 108 m²
- Energielabel A (opgemaakt in 2020, verwachting dat dit nog beter uitvalt)
- Volledig eigendom
- Buitenschilderwerk uitgevoerd in 2024
- 12 zonnepanelen
- Volledig gasloos en klaar voor de toekomst dankzij de warmtepomp
- Eigen parkeerplaats direct achter de woning
- Volledig vloerverwarming op alle verdiepingen
- HR+++ glas voor optimale isolatie
- Instapklaar, luxe en modern afgewerkt

Oplevering in overleg – verwachting oktober 2025.

Wilt u dit huis kopen? Neem dan uw eigen NVM-aankoopmakelaar mee!

Deze tekst is met zorg samengesteld. Voor de juistheid van de verstrekte informatie zijn wij in de regel in grote mate afhankelijk van derden. De vermelde informatie is van algemene aard en is niet meer dan een uitnodiging om in onderhandeling te treden. Aan de inhoud van deze informatie kunnen geen rechten worden ontleend.
Lees meer

Kenmerken

Overdracht

Status
verkocht
Aanvaarding
in overleg

Bouw

Soort woning
woonhuis
Soort woonhuis
eengezinswoning
Type woonhuis
eindwoning
Aantal woonlagen
3
Bouwjaar
2020
Onderhoud binnen
uitstekend
Onderhoud buiten
uitstekend
Voorzieningen
mechanische ventilatie, dakraam, glasvezel kabel, zonnepanelen, balansventilatie
Isolatie
volledig geisoleerd, driedubbel glas

Energie

Energielabel
A
Verwarming
vloerverwarming geheel, warmtepomp, warmte terugwininstallatie
Warm water
elektrische boiler eigendom

Oppervlakten en inhoud

Woonoppervlakte
127 m²
Perceeloppervlakte
186 m²
Inhoud
449 m³
Bergruimte oppervlakte
5 m²

Indeling

Aantal kamers
5

Buitenruimte

Ligging
in centrum, in woonwijk
Tuin
achtertuin met een oppervlakte van 53 m² en is gelegen op het zuidwesten

Garage / Schuur / Berging

Garage
geen garage
Parkeergelegenheid
openbaar parkeren, op eigen terrein
Schuur/berging
vrijstaand hout

Foto's

Plattegronden

Locatie

Video's

Vraag een bezichtiging aan of neem contact met ons op